Construction and conservation work are ongoing down at the Evergreen Brick Works, and the project has recently been attracting a good deal of attention. The Toronto Star reports today that National Geographic Traveler named Evergreen Brick Works a Top 10 destination for sustainable travel, and ERA was present for the recent royal site visit from HRH The Prince of Wales.

The Prince gives the Brick Works Farmers’ Market produce the Royal review.
ERA is currently working to stabilize the south east corner of Building 11, which will be adjacent to the new site entrance and welcome centre.

Building 11, as it currently stands
The floors between building 14 and 15 have been excavated and prep work is underway for the new greenways.
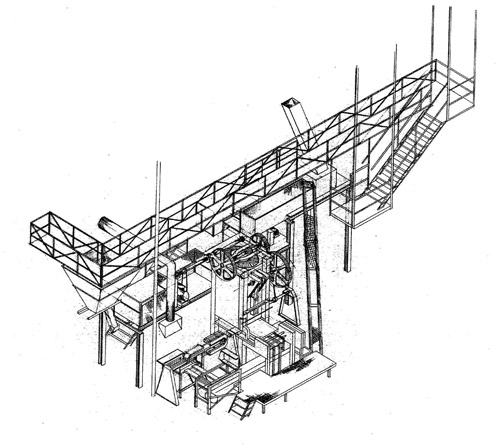
ERA is also working with Shawn Selway, of Pragmata Historic Machinery Conservation, to develop a conservation strategy and interpretation of the Martin A. Brick Machine.
Work is ongoing, so check back soon for further updates…





