Skip to content

ERA Architects

Sainte-Marie-au-pays-des-Hurons

In English >

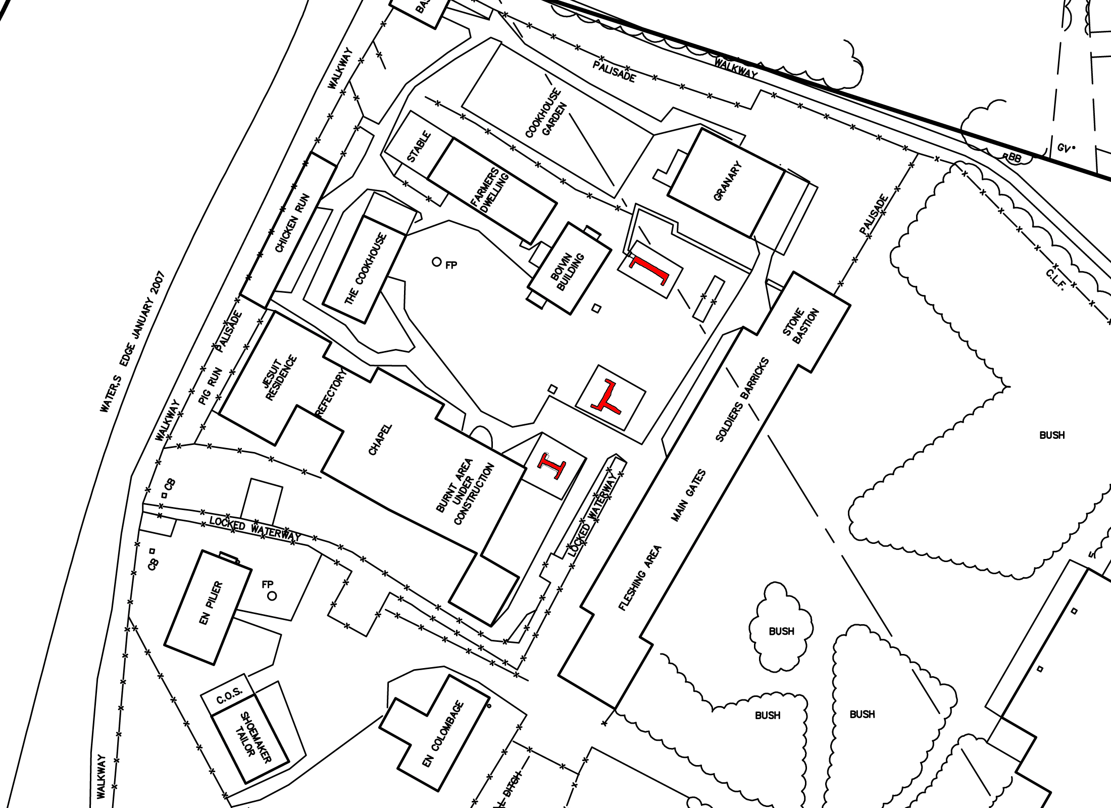
Un des premiers établissements européens en Ontario, Sainte-Marie-au-pays-des-Hurons est un haut lieu patrimonial national et un lieu d’intérêt international. L’enjeu consistant à élaborer un plan de conservation de trois foyers en ruine à cet emplacement historique a fourni l’occasion d’approcher la conservation en se demandant d’abord quelle était la meilleure façon d’interpréter ces artefacts et de les présenter au public.

Ces trois foyers datant de 1640 environ sont les plus anciens ouvrages de maçonnerie à l’ouest de la ville de Québec. Découverts lors de fouilles archéologiques au cours des années 1940, les foyers ont été exposés aux intempéries et se sont détériorés. Les Parcs historiques de la Huronie ont retenu les services d’ERA pour élaborer un plan directeur de conservation pour s’assurer de la conservation future des foyers.

ERA a mené et géré d’importantes recherches architecturales et des recherches sur le terrain, incluant des évaluations non destructives des lieux, des analyses de mortier et le recours à différentes méthodes visant à cartographier les changements dans les formes archéologiques au fil du temps.

Les recommandations finales incluaient la mise en place de méthodes adéquates d’interprétation et d’exposition des artefacts, la stabilisation des éléments bâtis avec un minimum d’interventions, la protection des artefacts contre les intempéries et la création d’une équipe de professionnels de la maçonnerie patrimoniale afin d’assurer la continuité de l’entretien.

 

Secteur
Localisation
Midland, ON
Date
2010
Client
Province of Ontario
Consultants
Keith Blades, Paul Goldsmith (Historic Restoration Inc.), John Triggs (Historic Horizon Inc.)
Distinctions
Canadian Association of Heritage Professionals
Heritage Evaluation Document, 2012