Disponible en français ci-dessous.
Over the past six years I’ve been researching and occasionally lecturing at SSAC conferences on Canadian architect Frank Darling (1850–1923) and his ultimate firm, Darling & Pearson. A clear narrative has evolved that outlines his leadership in developing an official “Edwardian” architecture in Toronto and beyond, the firm’s tremendous output of bank designs in the early twentieth century and, more generally, that period’s cultural and imperial context in English Canada.
As a heritage-focussed architect at ERA Architects, I’ve been drawn to Frank Darling because, in many ways, his work is hard to miss: so many buildings in Toronto issued from D&P’s office, and because the buildings are of such high quality they have endured, albeit often with different uses than originally designed for. Sometimes, we assist with restoring or converting them. Additionally, the prodigious output—over 300 known projects across the country—and the types of projects erected for the establishment of the time—the chartered banks, universities, hospitals, and clubs —make Darling & Pearson among the most important and prominent firms ever to practice in Canada.



As part of its mission to uncover and share new tangents in urban history at the vanguard of heritage theory, ERA has collaboratively published or been instrumental in the production of a number of books, such as Concrete Toronto: A Guide to Concrete Architecture from the Fifties to the Seventies, Tower Renewal, and The Ward Uncovered: the Archaeology of Everyday Life.
To add to the growing list, ERA Architects has committed to consolidating this research into the Frank Darling Book Project (FDBP) with the goal of publishing a long-overdue monograph on Frank Darling. Sean Blank has joined the ERA team to gather and corroborate archival information, organize it, and write entries for the catalogue raisonné. He’s building on an earlier layer of biographical research prepared by Evan McMurtry.

Because ERA has expertise in heritage analysis and historical research, and of course knows firsthand the complexities of conceiving and erecting buildings, we’re approaching the FDBP from a practitioner’s perspective: how did Darling’s firm oversee so many projects, some at the vanguard of modern building technology? What were the models and precedents that influenced the designs? Who were the clients and what were their goals? Who and how many worked at the firm, what training did they receive that allowed them to form so many spinoff firms? How did the firm’s serious Edwardian bank architecture transform and anchor both emerging and established places in early-twentieth-century Canada? These questions are informed by our interest in both understanding and navigating the often hidden complexities of architectural production today and at the turn of the last century.
The Buildings
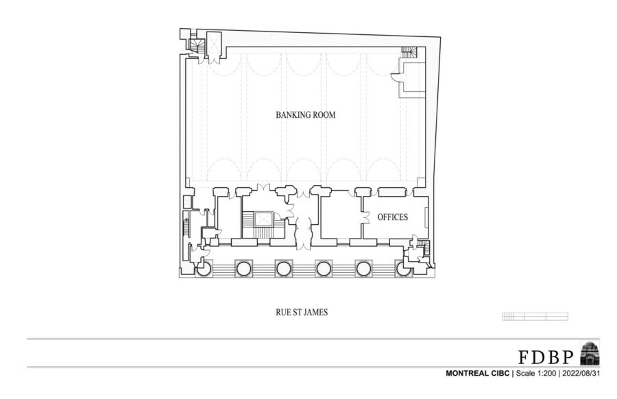
To begin to understand an architect’s oeuvre, it is important to analyse their body of work. For that, we’ve gathered archival and contemporary images of as many built commissions as we’ve been able to locate: thus far we’ve collected photos and/or drawings of 75% of the firm’s portfolio and prepared “posters” or contact sheets of the buildings organized by bank company, building type, and, interestingly for the stor(e)y, by height. Where available, we have collected floor plans and sections and redrawn them to scale for ease of comparison.

This is especially helpful for the many small bank branches: each one unique but some with traceable formal similarities so they can be grouped. Here is a sampling of the temple-fronted bank branches.

The research structure is organized using Robert Hill’s entries on Darling in his indispensable Biographical Dictionary of Architects in Canada 1800–1950, extracted and tabulated into a spreadsheet sortable by type, year, bank, etc. To that, we’ve added attributable properties found on the national register, bank archives, and other sources. Each project is given a code—for example, Bank001—for ease of retrieval. Each building file contains a folder for photos, a folder for research, and a Word file for building descriptions that will appear in the catalogue raisonné.

With this blog post, we are announcing to the Canadian architectural historian community that the FDBP is well underway and we welcome your involvement, whether by offering advice on research vectors, sharing photos, reminiscences, drawings—anything that adds insights to the evolving narrative. This is a long-overdue project about an incredibly important Canadian architect, so we’re striving for excellence through collaboration.
You can get in touch about ERA’s Frank Darling Book Project at [email protected]
Header image: Darling & Pearson, Winnipeg Grain Exchange Building, Winnipeg, Manitoba, 1906–07. Photo by David Winterton.
Annonce du projet de livre sur Frank Darling

Au cours des six dernières années, j’ai effectué des recherches et j’ai donné des conférences à la SÉAC sur l’architecte canadien Frank Darling (1850–1923) et son dernier cabinet, Darling & Pearson. Ces recherches ont permis de révéler son rôle prééminent dans le développement d’une architecture édouardienne dans la région torontoise, mais aussi la production considérable de son cabinet en matière de conception bancaire au début du 20e siècle. Dans une plus large perspective, elles ont aussi mis en lumière le contexte culturel et impérial de cette période dans le Canada anglais.
En tant qu’architecte spécialisé en patrimoine chez la firme ERA Architectes, j’ai été attiré à Frank Darling par l’omniprésence de son travail autour de moi. Beaucoup de bâtiments à Toronto sont issus du bureau de D&P. Ces bâtiments de grande qualité ont réussi à perdurer et ce malgré l’évolution fréquente de leur fonction d’origine. Nous avons parfois aidé à les restaurer ou à les reconvertir. En outre, leur production phénoménale – il existe plus de 300 projets connus dans tout le pays – et leurs types de projets, conçus pour l’élite de l’époque – banques, universités, hôpitaux et clubs – font de Darling & Pearson l’un des cabinets les plus importants et les plus éminents à avoir exercé au Canada.



Dans le cadre de sa mission consistant à découvrir et à partager de nouvelles approches de l’histoire urbaine, à l’avant-garde des théories patrimoniales, ERA a collaboré à la publication ou à la production d’un certain nombre de livres, tels que Concrete Toronto : A Guide to Concrete Architecture from the Fifties to the Seventies, Tower Renewal, et The Ward Uncovered : the Archaeology of Everyday Life.
Pour ajouter à cette liste croissante, ERA Architectes s’est engagé à consolider ses recherches dans le cadre du Frank Darling Book Project (FDBP) avec l’objectif de publier une monographie sur ce dernier, qui est attendue depuis longtemps. Sean Blank a joint l’équipe d’ERA dans le but de rassembler et vérifier la documentation archivistique, de l’organiser et de rédiger des rubriques du catalogue raisonné. Il s’appuie sur une première série de recherches biographiques préparées par Evan McMurtry.

Considérant l’expertise d’ERA en matière d’analyse du patrimoine et de recherche historique et sa connaissance des complexités de la conception et de l’édification du cadre bâti, nous abordons le FDBP d’un point de vue de praticien : comment l’entreprise de Darling a-t-elle supervisé tant de projets, dont certains étaient à l’avant-garde de la technologie des constructions modernes ? Quels étaient les modèles et les précédents qui ont influencé leur conception ? Qui étaient les clients et quels étaient leurs objectifs ? Qui travaillait au sein de l’entreprise, combien étaient-ils et quelle formation avaient-ils reçue pour leur permettre de former tant d’entreprises dérivées ? Comment l’approche architecturale bancaire édouardienne a réussi à transformer et ancrer des lieux émergents et établis dans ce Canada du début du XXe siècle ? Notre intérêt pour ces questions réside dans notre volonté de comprendre son œuvre ainsi que notre désir de naviguer à travers les complexités que présente la production architecturale d’aujourd’hui et de son temps.
Les bâtiments
Pour commencer à comprendre l’œuvre d’un architecte, il est important d’analyser l’ensemble de ses projets. Pour cela, nous avons rassemblé autant des images d’archives que contemporaines dans l’objectif d’amasser le plus grand nombre de mandats réalisés par Frank Darling. Jusqu’à présent, nous avons rassemblé des photos et/ou des dessins de 75% du portefolio de l’agence et avons grâce à eux préparé des affiches et des assemblages photos des bâtiments organisés par société bancaire, par type de bâtiment et par hauteur, ce qui est particulièrement intéressant d’une perspective historique. Lorsque cela était possible, nous avons recueilli des plans d’étage et des coupes et les avons redessinés à l’échelle pour faciliter les comparaisons.

Ceci est particulièrement utile étant donné le nombre élevé de petites agences bancaires. Chacune étant unique, mais présentant parfois des similitudes dans la forme qui permettent certains regroupements. Voici un échantillon de succursales bancaires avec façade classique s’inspirant de temple.

La structure de la recherche est organisée à partir des mentions de Robert Hill sur Darling, trouvées dans son incontournable Biographical Dictionary of Architects in Canada 1800-1950. Elles ont été extraites et classées dans une feuille de calcul permettant un tri par type, par année, par banque, etc. À cela, nous avons ajouté les propriétés spécifiques trouvées dans le registre national, les archives bancaires et d’autres sources. Chaque projet reçoit un code – par exemple, Bank001 – pour faciliter la recherche. Chaque dossier de bâtiment contient un dossier pour les photos, un dossier pour la recherche et un fichier Word décrivant le bâtiment qui apparaîtra dans le catalogue raisonné.

Avec cet article de blogue, nous annonçons à la communauté des historiens de l’architecture du Canada que le FDBP est en cours de réalisation et que votre participation est la bienvenue, que ce soit en offrant des conseils sur les vecteurs de recherche, en partageant des photos, des souvenirs, des dessins – tout ce qui peut aider à l’évolution du récit. Il s’agit d’un projet attendu depuis longtemps sur un architecte canadien très important et nous visons donc l’excellence par la collaboration.
Vous pouvez nous contacter au sujet du projet de livre sur Frank Darling de l’ERA à l’adresse [email protected]