This summer, construction began at GEMINI House, a collaboration in low-energy retrofit research between the University of Toronto and Ryerson University. Professors Kim Pressnail and Russell Richman are the research leads, and ERA is the architect of record. The project explores new approaches to low-energy housing design, with the added complexity of being executed within an 1880s Second Empire-style masonry home, located on the UofT campus.
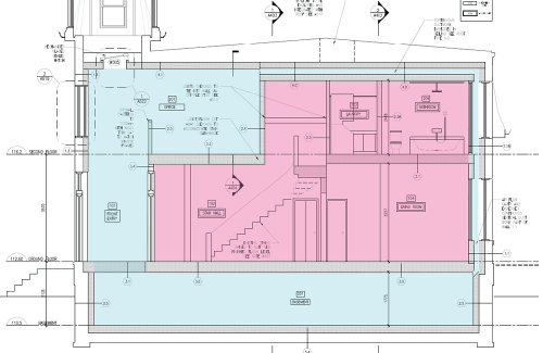
The GEMINI NTED™ approach involves the implementation of two separate high-performance envelopes that thermally isolate the house into two zones: “core” and “periphery.”The core space comprises rooms expected to be in daily use (kitchen, living room, bedroom, and bathroom), and will therefore be heated on a daily basis in cooler months. The periphery spaces (formal dining room, guest bedroom, basement) are kept at a minimal level of heat, but can be warmed on demand.
With a much smaller portion of the house requiring regular heating, and the presence of a high performance envelope, the project anticipates significant heat load reductions and energy savings. The design also allows heat lost from the core to be captured in the periphery and passed back to the core via heat pump.
In order to protect the heritage fabric of the home, a vent space was required between the new envelope and the heritage brick walls, which ensures the masonry can continue to disperse absorbed moisture effectively. More conventional conservation work has included restoration of exterior historic polychrome brickwork, the refurbishment of original windows on the primary elevation, and the restoration of a highly ornamental period plaster ceiling in the dining room.
With the use of significant amounts of spray foam (over 500mm in some cases), double layers of triple glazed windows, and two ERV circuits, the project introduces many firsts into green eco-refurbishment for a single-family home in the Toronto context.
Keep an eye out for a launch in the fall of this year, and post-occupancy evaluation results in 2014.



